Téléchargez la nouvelle app!

5

App Store Google Play

MERCATOR - Vente des murs industriels ou à usage de bureaux

1/1

Voulez-vous plus de photos?

Demandez à l'agence
26 500 000 €
900 m²
ROC LACC2-23
Monaco - Fontvieille
900 m²
26 500 000 € ROC LACC2-23
Description

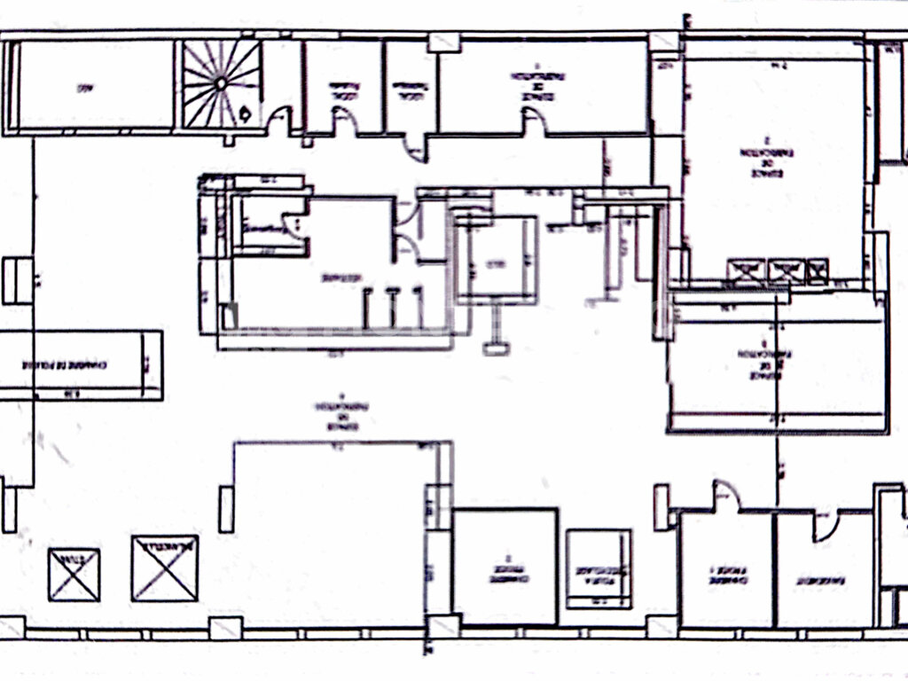
Etage entier desservi par ascenseur et monte-charges.


Bureaux de 800m² + réserve en sous-sol de 100m². Voir plan.

6 parkings inclus.

Lois : non
Caractéristiques
Référence:
ROC LACC2-23
Type de propriété:
Murs local commercial
Contrat:
Vente
Prix:
26 500 000 €
Etage:
3
Caves:
1
Places de stationnement:
5
Superficie habitable:
800 m²
Superficie totale:
900 m²
Situation
Quartier:
Fontvieille
Carte
Monaco
Options additionelles

Ce document ne fait partie d'aucune offre ou contrat. Toutes mesures, surfaces et distances sont approximatives. Le descriptif et les plans ne sont donnés qu'à titre indicatif et leur exactitude n'est pas garantie. Les photographies ne montrent que certaines parties de la propriété. L'offre est valable sauf en cas de vente, retrait de vente, changement de prix ou d'autres conditions, sans préalable.

Annonces similaires
    Voir d autres annonces similaires
    Retrouvez cette annonce dans
    Demander des informations pour cette propriété MERCATOR - Vente des murs industriels ou à usage de bureaux
    Demander une visite
    Sélectionnez vos dates
    Sélectionnez les créneaux horaires

    Ceci n'est pas une réservation: Vos dates seront envoyées à l'annonceur qui vous contactera.

    Continuer
    /